Smarte 3 Zimmer-Wohnung, Tübingen Südstadt
Objektdaten
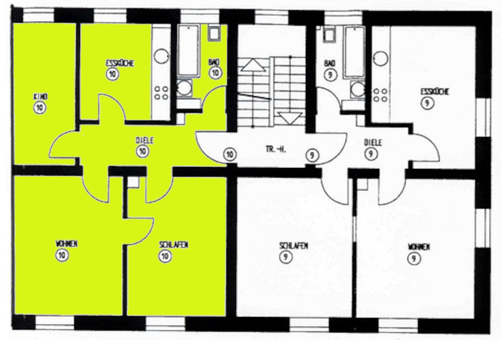
Baujahr 1930, Sanierung 2003, 60,08 m² Wohnfläche, 3 Zimmer, Küche, Diele, Bad/WC, Parkett -Fliesenböden, 3 Keller, gemeinschaftlicher Waschraum und Trockenraum, Gaszentralheizung. Endenergiebedarf 104,1 (kWh/(m²*a) Energieeffizienzklasse D, es handelt sich um eine Etagenwohnung. Die Wohnung eignet sich sehr gut für eine Wohngemeinschaft, für Kapitalanleger interessant.
Kaufpreis: Preis auf Anfrage
3,57% Käufer-Provision inkl. MwSt. verdient und fällig mindestens 2 Wochen nach notariellerBeurkundung des Kaufvertrages. Wir haben einen provisionspflichtigen Maklervertrag ingleicher Höhe mit dem Verkäufer abgeschlossen (§656 c BGB).
Lage
Nur 15 Gehminuten zum Stadtkern wird in einem Mehrparteienhaus diese Obergeschoss-Wohnung angeboten. Das Gebäude grenzt am Lorettoviertel an. Die Raumaufteilung eignet sich für eine Wohngemeinschaft. Bushaltestelle und Supermärkte für den täglichen Bedarf befinden sich in unmittelbarer Nähe
Weitere Traumimmobilien
Wir freuen uns auf Ihre Kontaktanfrage!
Adresse
- Objekt-Nr. 923
- Preis Preis auf Anfrage
- Gebäudetyp Wohnung
- Verfügbarkeit Verkauft
- Zimmer 3
- Badezimmer 1
- Baujahr 1930
- Wohnfläche 60,08 m2



