Barrier-free new construction project, 1,5-4,5 rooms at 76534 Baden Baden Varnhalt
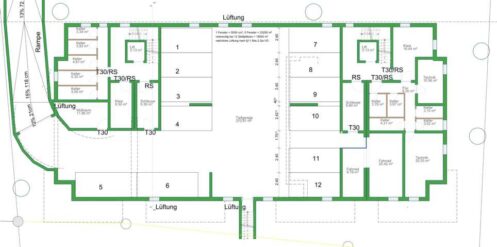
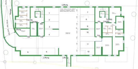
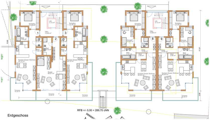
the two apartment buildings, each with six apartments, are being built in the Varnhalt district of 76534 Baden-Baden. The location offers a blend of nature and proximity to the city. Apartment sizes range from 59,09 m² to 151,09 m², a plot area of 1772 m², living space of 1128 m²,usable space of 600 m², and 12 underground parking spaces.
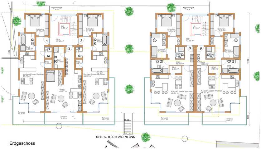
House 1: six apartments with balconies or terraces
House 2: six apartments with balconies or terraces
The apartment building will be built to KFW 50+ standards and features a climate-friendly air-source heat pump supported by a PV system. All apartments are wheelchair accessible. The apartments are bright and sunny due to the location of the property. Each apartment has level access to the elevator. The amenities include parquet floors, high-quality tiles, electric shutters, and each apartment will have a charging station in the underground garage. The windows are triple-glazed with a very good U-value.
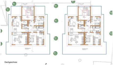
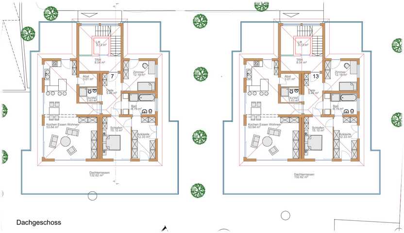
The penthouse apartments feature a wraparound roof terrace with beautiful views of the Black Forest. The apartments are attractive to both owner-occupiers and investors. A building permit is pending approval. Construction is scheduled to begin in summer 2026.
Apartment Rooms Living space m²
House 1
Nr.1 groundfloor 2,5 74,85 370.507 €
Nr.2 groundfloor 1,5 59,09 292.495 €
Nr.3 groundfloor 2,5 75,63 374.368 €
Nr.4 1.floor 2,5 75,63 374.386 €
Nr.5 1.floor 1,5 59,09 292.495 €
Nr.6 1.floor 2,5 74,85 370.507 €
Nr.7 attica 4,5 151,09 775.174 €
House 2
Nr.8 Erdgeschoss 3,5 103,40 511.830 €
Nr.9 Erdgeschoss 3,5 102,62 507.969 €
Nr.10 Obergeschoss 2.5 75,63 374.368 €
Nr.11 Obergeschoss 1,5 59,09 292.495 €
Nr.12 Obergeschoss 2,5 74,85 370.507 €
Nr.13 Dachgeschoss 4,5 151.09 775.174 €
Parking space € 25.000
Further dream properties
We are looking forward to your contact request!
Address
- Property ID 0936
- Price Price on Call
- Property Type apartment
- Property status construction project, For sale












