smart 3 room apartment
object data
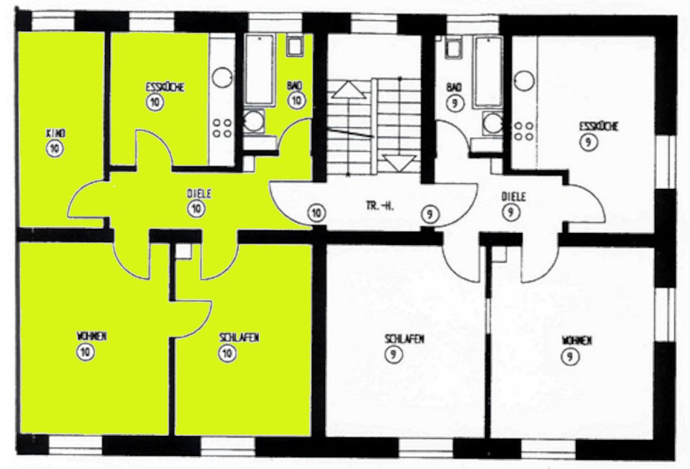
Built in 1930, renovation in 2003, 60.08 m² of living space. 3 rooms, kitchen, hallway, bath/toilet, parquet and tiled floors, 3 cellar, communal washroom and drying room, gas central heating. Final energy requirement 104.1 (kWh/(m²*a) energy efficiency class D. The room layout is suitable for a shared flat, suitable for investors.
Purchase price: Price on request
3.57% Buyer's Commission including VAT earned and due at least 2 weeks after notarization certification of the purchase contract. We have a commissionable brokerage agreement in same amount with the seller (§656 c BGB).
location
Only a 15-minute walk to the city center is this apartment. The building borders on the Loretto district. The room layout is suitable for a shared flat. Bus stop and supermarkets for daily needs are in the immediate vicinity
Further dream properties
We are looking forward to your contact request!
Address
- Country: Germany
- Province / State: Tübingen
- Postal code / ZIP: 72072
- Property ID 923
- Price Price on Call
- Property Type apartment
- Property status Sold
- Rooms 3
- Bathrooms 1
- Size 60,08 m2



